戶型面積:158平米
風格介紹:美式
設計師: 康立翅

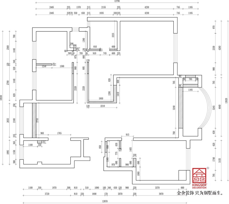
原始平面圖

戶型拆除墻體解析

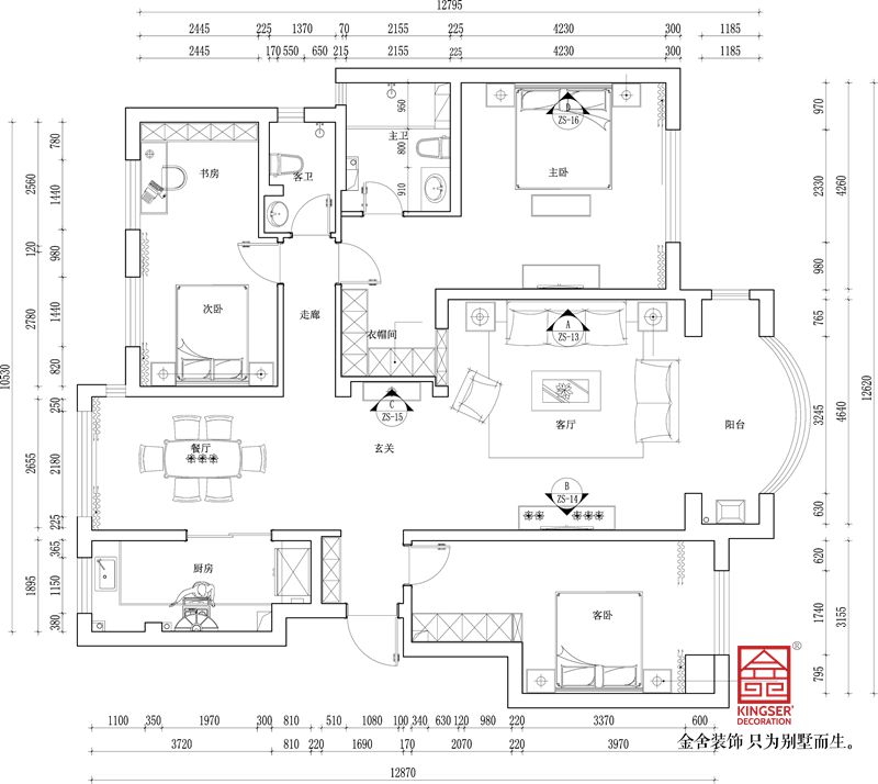
拆改后布置圖
墻體拆除解析:
1、入戶門的玄關墻往后挪,留出來兩個對稱造型,增加了門廳儀式感,
2、餐廳和客廳都拆除了兩邊埡口的窗戶,使得南北更添加通透,采光更強。
3、廚房外擴變得更加寬敞舒適。
4、拆除一部分走廊墻體,使走廊變得不再狹長,客衛墻體外擴增加了衛生間的面積,同時主衛也擴大了面積,北臥室的墻拆除變成開敞書房加臥室。
5、客廳的一面墻部分拆除做了置物的隔斷,避免了一面墻的單調。
6、次臥把原有的隔墻拆掉,增加了儲物空間。