【項目名稱】:東南智匯城
【項目面積】:191平米
【設計風格】:新中式風格
【設計主創】:何瑞根
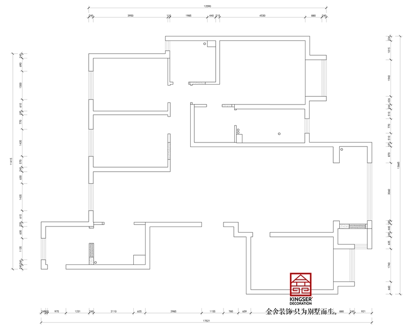
東南智匯城191平米戶型原始平面圖

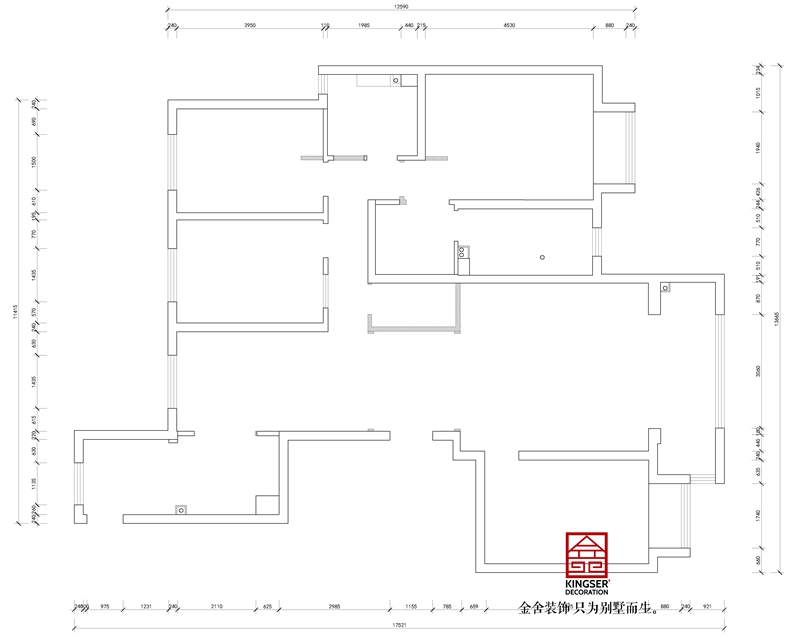
東南智匯城191平米戶型墻體拆除圖

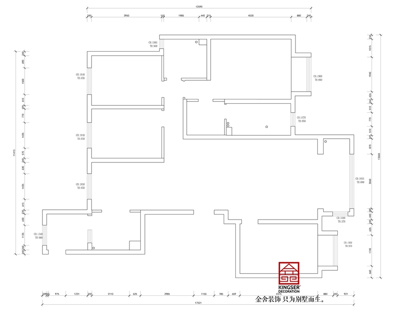
東南智匯城191平米戶型墻體新建圖

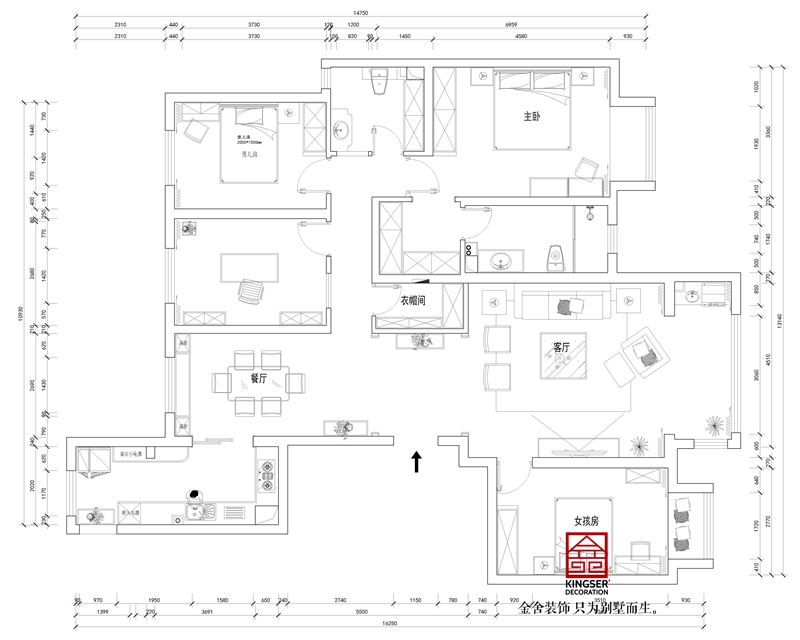
東南智匯城191平米戶型設計平面圖
戶型解析:
原戶型中進門門廳空間過于浪費,且進門缺少入戶鞋帽柜,將門廳部分空間隔出新建入戶衣帽間,在門廳不失大氣的前提下最大化利用空間,并解決了進門后衣物無法收納的問題。
原戶型中客衛門位于走廊盡頭,風水中其意:是非口舌,心口堵。在戶型允許的情況下,犧牲部分主臥走廊的空間之后,將原客衛門南移,與走廊錯開。
原戶型中廚房空間過小,不能滿足日常需要,在空間允許的情況下,將廚房間北陽臺墻體拆除后,廚房擴大至原先的一倍,使用起來更為舒適方便。
原戶型中南陽臺東側為空調外機位,拆除后增加室內空間,成為晾曬區,解放陽臺主空間,讓陽臺成為真正的休閑陽臺。